Leistungen

Konstruktionsunterlagen

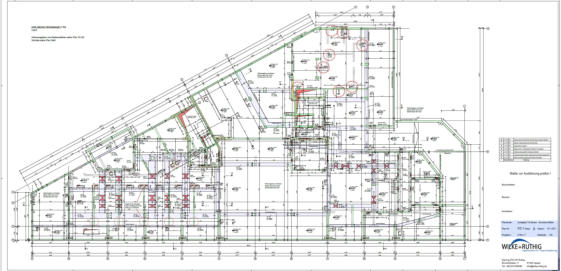
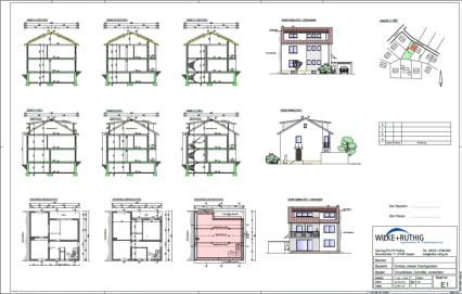
Im Folgenden sind einige Beispiele unserer Konstruktionsunterlagen dargestellt: Zum Vergrößern der Abbildungen bitte anklicken
Eingabepläne zur Baugenehmigung
Schalpläne für den Massivbau
Bewehrungspläne für Stb.-Bauteile
Holzbaukonstruktionspläne
Werkstattzeichnungen im Stahl- und Leichtmetallbau
Explosionszeichnungen im Stahlbau
Mit Hilfe leistungsstarker CAD-Software auf dem neuesten Stand der Technik sind wir in der Lage, jede beliebige Konstruktion individuell darzustellen. Für Fragen zu Konstruktionsunterlagen können Sie jederzeit gerne mit uns in Kontakt treten.
RUTHIG Ingenieure Dipl-Ing.(FH) Klaus-Peter Ruthig     Telefon:	06232 / 6790 68-0 Telefax:	06232 / 6790 68-9      Email: info@ruthig-ingenieure.de Internet:	www.wilke-ruthig.de     Von-Denis-Straße 7 67346 Speyer Zurück zur Übersicht Zurück zur Übersicht RUTHIG Ingenieure Dipl-Ing.(FH) Klaus-Peter Ruthig     Telefon:	06232 / 6790 68-0 Telefax:	06232 / 6790 68-9      Von-Denis-Straße 7 67346 Speyer    Email:       info@ruthig-ingenieure.de Internet:   www.ruthig-ingenieure.de