Projekte Stahl- und Leichtmetallbau

Zum Vergrößern der Abbildungen bitte anklicken

Industriegebäude - Heizgebäude

Neubau Stahlhalle mit massiver Außenhaut Bauweise: Stahlhalle mit Porenbeton Außenhaut Tragkonstruktion als klassischer Stahlbau Einzel- und Streifenfundamente Größe: Grundfläche: 35,5m x 20,5m Höhe: 10,5m Leistungen: Werkplanung Stahlhalle: Statische Berechnung (2D+3D) Gründung: Statische Berechnung (2D) Schal- und Bewehrungspläne (3D) Werkstattzeichnungen Stahlbau statisch-konstruktive Bauüberwachung
Isometrie Außenhülle
Innensicht Halle
Isometrie Tragkonstruktion
Stahlbau Treppe

Industriegebäude - Lagerhalle

Neubau Stahlhalle Bauweise: Stahlhalle mit Halbrahmen klassischer Stahlbau Einzel- und Streifenfundamente Größe: Grundfläche: 22,5m x 14,5m Höhe: 6,3m Leistungen: Statische Berechnung (2D) Aussteifungsberechnung Erdbeben / Wind (2D) Schal- und Bewehrungspläne statisch-konstruktive Bauüberwachung
Isometrie - Vollmodell
Isometrie - Werkstattzeichnung
Isometrie - Drahtmodell
Ansicht Hauptachse

Industriebau - Fluchttreppe

Neubau Stahltreppe Bauweise: Stahltreppe mit Einhausung klassischer Stahlbau Gründung auf Stahlbeton-Wandung Größe: Grundfläche: 8,0m x 3,5m Höhe: 13,5m Leistungen: Statische Berechnung (3D) Aussteifungsberechnung Erdbeben / Wind (3D) Schal- und Bewehrungspläne statisch-konstruktive Bauüberwachung
Isometrie - Werkstattzeichnung
Ansicht - Werkstattzeichnung
Isometrie - Statik
RUTHIG Ingenieure Dipl-Ing.(FH) Klaus-Peter Ruthig     Telefon:	06232 / 6790 68-0 Telefax:	06232 / 6790 68-9      Email: info@ruthig-ingenieure.de Internet:	www.wilke-ruthig.de     Von-Denis-Straße 7 67346 Speyer

Industriebau - Tankbehälter

Sanierung Treibstofftank Bauweise: radiales Membrantragwerk Stahlbau/Leichtbau Gründung auf Streifenfundament Größe: Durchmesser Grundfläche: ø 18,0m Höhe: 13,8m Leistungen: Statische Berechnung (3D) Aussteifungsberechnung Erdbeben / Wind (3D) statisches Sanierungskonzept statisch-konstruktive Bauüberwachung
Isometrie - statisches System
Querschnitt - statisches System
Isometrie - Verformung
Isometrie - Lastfall Innendruck

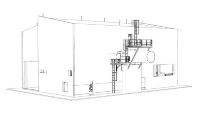
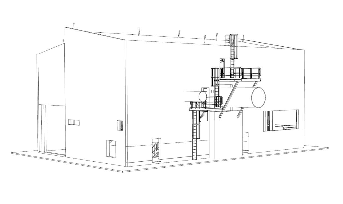
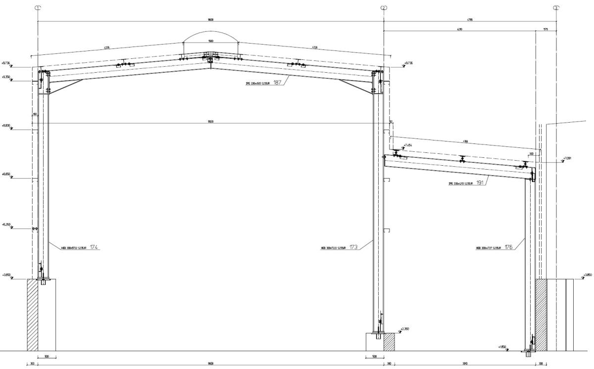
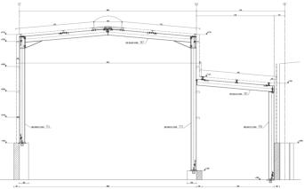
Industriegebäude - Verdichterhalle

Neubau Stahlhalle Bauweise: Stahlhalle mit versetztem Scheddach klassischer Stahlbau Gründung mittels Einzelfundamenten Größe: Grundfläche: 24,3m x 15,4m Höhe: 12,5m Leistungen: Statische Berechnung (2D) Aussteifungsberechnung Erdbeben / Wind (2D) Bewehrungspläne Werkstattzeichnungen statisch-konstruktive Bauüberwachung
Ansicht
Isometrie - Explosionszeichnung
Isometrie - Tragwerk
Ansicht Innentreppe

Industriegebäude - Lagerhalle

Neubau Stahlhalle Bauweise: einseitig offene Stahlhalle Satteldach mit Lichtkuppel klassischer Stahlbau Einzel- und Streifenfundamente Größe: Grundfläche: 20,0m x 10,0m Höhe: 5,8m Leistungen: Statische Berechnung (3D) - Stahlhalle Statische Berechnung (2D) - Gründung Schal- und Bewehrungspläne statisch-konstruktive Bauüberwachung
Isometrie
Lastbild Wind
Isometrie Statik
Detail Stahlbau Firstpunkt
Isometrie Gründung
Detail Bewehrung (transparente Darstellung)
RUTHIG Ingenieure Dipl-Ing.(FH) Klaus-Peter Ruthig     Telefon:	06232 / 6790 680 Telefax:	06232 / 6790 689      Von-Denis-Straße 7 67346 Speyer    Email:       info@ruthig-ingenieure.de Internet:   www.ruthig-ingenieure.de